


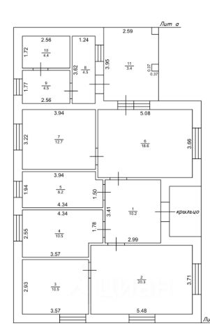
Арт. 127153257 Уважаемые покупатели! Предлагаем Вашему вниманию современный кирпичный дом 105м2 с новым ремонтом! Важно! - Юридически чистый и проверенный объект! Безопасная сделка! Преимущества: Участок 6 соток , ИЖС ровной и правильной формы! -Экологически чистый район! Помогаем с одобрением ипотеки!!! Проходит по сельхоз ипотеке! Проходит по военной ипотеке! Отличное состояние дома! Утепление стен :каменная вата 100 мм !Электрика по Гост! Интерет! Заезжай и живи! Порядочные соседи! Очень продуманная удобная планировка! в Доме 3 спальни! Просторная кухня -гостинная! Вся инфраструктура и удобства! Пятерочка , Верный! Аптеки! Дет сады Школы. Спортивные секции! Асфальт до дома! Хорошие подъездные пути! Транспортная развязка 20 минут на машине до РКБ , 5 минут до М 12, 20 минут до Камского моря Дом вашей мечты по цене студии в Казани!
























































































