171 329 ₽/м²
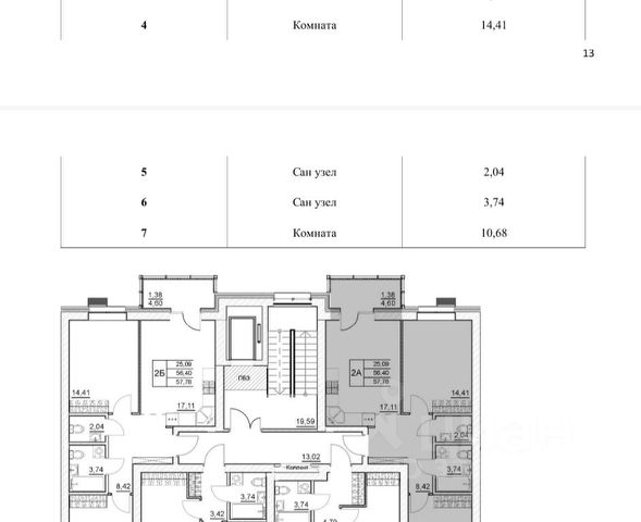
Арт. 134221182 Продается квартира c ремонтом 28,6 кв.м. в ЖK "Цаpeвo Village". Подходит для собственного проживания, так и ГОТОВЫЙ АРЕНДНЫЙ БИЗНЕС! О квартире: Чистая, светлая отделка в нейтральных тонах. Санузел: В кафеле, установлена качественная сантехника. Лоджия Инфраструктура: Дом расположен в благоустроенном и тихом дворе без интенсивного транзитного движения. Рядом остановка, торговый центр и прогулочный бульвар. Детские сады, школа Квартиру покажу в любое время по договоренности. Звоните, отвечу на все интересующие вас вопросы. Иногородним обеспечу трансфер до объекта. Помощь с ипотекой (одобрим с субсидированной ставкой от 11.9% на покупку вторичного жилья).






















































































