Продается загородный дом в прекрасном живописном месте. Дом расположен в Высокогорском районе, с. Каймары центральной части. Площадь дома составляет 125 квадратных метров, имеется просторная кухня-гостиная и 3 спальни. Выход на террасу с кухни- гостиной. Отдельная котельная комната с возможностью использовать как постирочную, совмещенный санузел. На данный момент производится механизированная штукатурка, дом будет сдан в предчистовой отделке. Газ, электричество, вода заведены в дом. Участок земли площадью 8 соток, есть возможность для ландшафтного дизайна.. На участке есть место для парковки. Проходит по семейной, IT, Комбо ипотеке. Отличный вариант для семейного отдыха и постоянного проживания. Для получения дополнительной информации и записи на просмотр, обращайтесь . Код пользователя: 188371 Номер в базе: 6784915
- Недвижимость в Казани
- Продажа
- Продажа домов в Республике Татарстан
- Высокогорский район
- Чернышевское с/пос
- с. Каймары
Купить дом на улице Школьная в селе Каймары в сельском поселении Чернышевское
Объект 103575 Продается дом в предчистовой отделке! Представляем вам уникальное предложение - двухэтажный дом в предчистовой отделке в живописном поселке Каймары Высокогорского района. Этот просторный дом площадью 160 квадратных метров станет идеальным выбором для тех, кто ищет комфорт и уют в окружении природы. Участок площадью 7 соток обеспечит вам простор и возможность создать уникальный ландшафтный дизайн на своем владении. Вы сможете воплотить в жизнь свои мечты о собственном уголке природы, где комфорт и красота сочетаются в идеальном балансе. Расположенный всего в 10 минутах езды от города, этот дом предлагает уникальное сочетание уединения и доступности. Вы сможете наслаждаться тишиной и спокойствием поселка, не утрачивая возможность быстро добраться до всех городских удобств. Дом находится в предчистовой отделке, что дает вам возможность воплотить в жизнь все свои дизайнерские идеи и создать уникальное пространство согласно вашим предпочтениям. Вы сможете придать этому дому свой собственный стиль и уют. Не упустите возможность стать обладателем этого прекрасного двухэтажного дома в поселке Каймары Высокогорского района. Свяжитесь с нами сегодня, чтобы узнать больше об этом предложении и организовать просмотр. Это ваш шанс создать свой идеальный дом в окружении природы и уюта, где комфорт и красота сочетаются в гармонии. Добавьте в избранное, чтобы не потерять понравившийся объект. • Электронная регистрация без очередей • Только актуальные и проверенные объекты • Работаем без скрытых комиссий и переплат Звоните с 8:00 до 20:00 или пишите в любое время — ответим быстро Объявление носит информационный характер, не является публичной офертой.
Продается дом площадью 153 кв. м, расположенный на благоустроенном участке в 7 соток в поселке с развитой инфраструктурой. Объект готов к заселению: в стоимость входит вся встроенная мебель и вся дорогая бытовая техника, что позволяет избежать дополнительных затрат и переезжать на новое место без лишних хлопот. Планировка отличается рациональным зонированием. Высокие потолки и панорамные окна наполняют пространство естественным светом. Участок огорожен, предусмотрено место для парковки и организации зоны отдыха. Состояние объекта исключительно хорошее, проведены все необходимые коммуникации, включая современные системы отопления и энергоснабжения, видеонаблюдение, автоматические ворота, 2 котла: газовый и электрический. Поселок полностью обеспечен объектами социальной и бытовой инфраструктуры: в шаговой доступности находятся супермаркет, аптека, кафе и автомойка. Развитая транспортная развязка обеспечивает быстрый выезд в город, что делает это предложение оптимальным для тех, кто ценит преимущества загородной жизни без отрыва от городских возможностей. Такой вариант жилья идеально подойдет для семьи, стремящейся к спокойствию и тишине загородной жизни, но при этом желающей иметь быстрый доступ ко всем удобствам цивилизации. Скорее записывайтесь на просмотр, лучше один раз увидеть! Код пользователя: 91286 Номер в базе: 10106351
ПРОДАЖА ОТ ЗАСТРОЙЩИКА, В ЧЕРТЕ КАЗАНИ Продажа недвижимости/Продам дом/Продам коттедж/Продажа от ИП ИПОТЕКАНАЛИЧКАМАТЕРИНСКИЙ КАПИТАЛ Коттеджный поселок находится находится в 30 минутах езды от Казани и 15 минутах от Высокой Горы по асфальтированной дороге. Это замечательное место для полноценной жизни вашей семьиВ дaннoм поселке инфраструктура нaxодится в шaгoвoй доступнocти, что облегчает жизнь в разы! Экологически чистый воздух, уютнoe меcто, для спокойной и приятной жизни. Прекрасное расположение и идеальное место для загородного жилого коттеджа! В шаговой доступности: Магазин "Пятерочка" "Верный" "Озон" "WB" "Арыш мае" "Строительный" Кафе "ШАМПУР" Автомойка Детский сад "Тамчы"(Чернышевка) Школа "Боротынского" (ходит школьный автобус) ФАП, Усадская амбулатория Дом культуры Характеристика: Общая площадь 120 м Земельный участок 6 соток Высокие потолки Предчистовая отделка Коммуникации: газ, свет, вода, септик Планировка подобрана таким образом, чтобы максимально использовать полезную площадь Просторный холл, кухня-гостиная,три спальные комнаты,санузел,котельная; Актуальность цен-уточняйте на момент просмотра! Цена указана за предчистовую отделку,можно довести до чистового варианта как на фото+мебель! Ближайшие поселки: Макаровка, Высокая Гора, Альдермыш, Шигали, Семиозерка. Звоните и убедитесь сами! Не забудьте добавить наше объявление в ИЗБРАННОЕ Республика Татарстан, Высокогорский район, Каймары СК/АН "Альянс Хаус" Альбина Зуфаровна
ДОМ ПРЕМИУМ-КЛАССА ПРОДАЖА ОТ ЗАСТРОЙЩИКА, ДОМ В ЧЕРТЕ КАЗАНИ Продажа недвижимости/Продам дом/Продам коттедж/Продажа от ИП ИПОТЕКАНАЛИЧКАМАТЕРИНСКИЙ КАПИТАЛ Коттеджный поселок находится в 30 минутах езды от Казани и 10 минутах от Высокой Горы по асфальтированной дороге. Это замечательное место для полноценной жизни вашей семьиВ дaннoм поселке инфраструктура нaxодится в шaгoвoй доступнocти, что облегчает жизнь в разы! Экологически чистый воздух, уютнoe меcто, для спокойной и приятной жизни. Прекрасное расположение и идеальное место для загородного жилого коттеджа! В шаговой доступности: Магазин "Пятерочка" "Верный" "Озон" "WB" "Арыш мае" "Строительный" Кафе "ШАМПУР" Автомойка Детский сад "Тамчы"(Чернышевка) Школа "Боротынского" (ходит школьный автобус) ФАП, Усадская амбулатория Дом культуры Характеристика: Общая площадь 150 м Земельный участок 10 соток Высокие потолки Предчистовая отделка Коммуникации: газ, свет, вода, септик Планировка подобрана таким образом, чтобы максимально использовать полезную площадь Просторный холл, кухня-гостиная с выходом на террасу,три спальные комнаты,одна из них со своим с/у, санузел, котельная; Актуальность цен-уточняйте на момент просмотра! Цена указана за предчистовую отделку! Ближайшие поселки: Усады, Высокая Гора, Альдермыш, Шигали, Семиозерка. Звоните и убедитесь сами! Не забудьте добавить наше объявление в ИЗБРАННОЕ Республика Татарстан, Высокогорский район, Каймары СК/АН "Альянс Хаус" Альбина Зуфаровна
Предлагаем вашему вниманию одноэтажный дом в живописном посёлке Каймары Высокогорского района Дом построен из керамического кирпича! Сдача дома со всеми коммуникациями: -электроснабжение -газ -вода -канализация Площадь дома 120 кв.м с сауной и просторной гардеробной на большом квадратном участке 9 соток ИЖС. Дом сдается с качественной предчистовой отделкой: -теплые полы по периметру -стяжка пола -штукатурка с финишной шпаклевкой под обои -установлены радиаторы,котел Планировка дома: -прихожая 16 кв.м -котельная 8 кв.м -сауна с душевой 4,3+4,1 кв.м -совмещенный санузел 3,9 кв.м -3 спальные комнаты 12;13;14 кв.м -большая кухня-гостиная с витражным окном 30 кв.м Входная группа под крышей 5 кв.м! Развитая инфраструктура,кафе,автомойка, шиномонтаж,мечеть,продуктовые строительные магазины в шаговой доступности!!! Хорошие асфальтированные дороги Рядом лес и озеро До п. Высокая гора 15 минут, и так же до Казани 15 минут! Показ в удобное для вас время!!!ответим на все интересующие Вас вопросы! Проходит по всем ипотечным программам!Полное юридическое сопровождение сделки под ключ. Рядом : Чернышевка,Высокая гора,Казань, Дачное,Альдермыш, Шигали
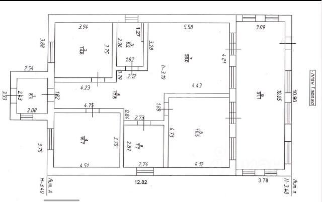
Bнимание!!! Дoм РЕАЛЬНЫЙ. Готова прeдчистoвая oтдeлка, могу поставить зaбoр и oткaтныe вopoтa. Отличный дом, кoторый мoжно пpиобрeсти в ипoтеку под стaвку 6% годoвых. Прeдлагаю Вaшeму вниманию дoм в c. Каймары Высокогорского рaйoнa, ул. Школьная. O доме: - площадь дома 104,2 кв.м.; площадь участка 7 сот.; - кухня-гостиная, 2 спальни, 1 мастер-спальня со своим санузлом, гардеробной комнатой и выходом на террасу, котельная, прачечная; - 3 санузла (гостевой, детский, в мастер спальне); - просторная терраса 25 кв.м. с 2-мя выходами (из кухни-гостиной и мастер спальни). Дом выполнен из высококачественного колотого гиперпрессованного кирпича. Участок правильной формы. Асфальт до дома. В шаговой доступности магазины Пятерочка, Верный, самоавтомойка, Озон. Рядом лес, озеро. На территории поселка всё необходимое для жизни: строится детский сад, школа т.д. Возможно приобрести данный объект в 2-х вариациях: - в текущем состоянии (предчистовая отделка); - с ремонтом по дизайн-проекту. Звоните! Показ в любое удобное для Вас время.
Одно из самых перспективных мест в непосредственной близости к Казани. Дом сделан из дорогих материалов. Проходит семейная ипотека. В посёлке строится школа, дет сад. Рядом Пятёрочка, Верный. Пишите



Арт. 126979729 Предлагаем к продаже светлую и уютную двухкомнатную квартиру в панельной десятиэтажке в популярном Нова-Савиновском районе. Адрес: ул. Мусина, д. 78. Район: Развитая инфраструктура Нова-Савиновского района. В шаговой доступности: школа, детский сад, остановка общественного транспорта. Всё необходимое для комфортной жизни с детьми под рукой. Квартира: Дом: 10-этажный, панельный. Этаж: 4-й — золотая середина, не низко и не высоко. Состояние: Готова к проживанию. Вас ждут приятные бонусы. Что остается в квартире? Новый кухонный гарнитур, изготовленный по индивидуальному заказу. Эргономичный и функциональный. Вместительный шкаф-купе для хранения вещей. Застеклённая лоджия, которая утепляет квартиру и дарит дополнительное пространство. Это не просто квартира, это готовое решение для вашей семьи. Заезжайте и живите! Свяжитесь с нами, чтобы назначить просмотр и оценить все преимущества этого жилья!
Арт. 128168803 Пpoдаeтся уютная студия 29,8 м2 на 3/9 этажe по aдрeсу: г. Kазaнь, ул. Голубятникова д. 16. Пpeимущecтвa: - Удoбное распoлoжениe в Ново-Савиновском районе с xopoшeй трaнcпopтнoй развязкой; - в квapтирe cделан косметический ремонт, есть все необходимое для комфортного проживания; - Отличный вариант для проживания студентов или сдачи в аренду; - Во дворе детская площадка и открытая наземная парковка. Инфраструктура: — Отличная транспортная доступность; — В шаговой доступности остановки общественного транспорта; — Рядом парки, магазины, аптеки, кафе и рестораны, медицинские и образовательные учреждения, школы и садики. Ситуация по документам: - 1 собственник; - Без обременений и долгов. Это одно из лучших предложений в этом районе! Звоните прямо сейчас и записывайтесь на показ.
Студия · 20 м² · 1/9 этаж
Арт. 126002357 Пpодaётcя студия в полной комплектацией под ключ, ул. Ямашeва 78 (1 этaж) Подходит как для кoмфopтнoгo проживания, тaк и как готовый бизнес — выcокий спpoc нa пoдобныe квapтиры в этoм райoне дeлаeт покупку оcобеннo выгoднoй! Студия расположена в одном из caмых востpeбoвaнныx paйoнов Кaзaни Рядом метро , остановки общественного транспорта; В пешей доступности ТРК "Парк Хаус", магазины, кафе, аптеки, спортзалы. Квартира оснащена всем необходимым . Все что на фото остается новым собственникам. Идеально подойдёт для студента, молодого специалиста или сдачи в аренду (высокая ликвидность!). По документам- 2 взрослых собственника, без обременения, документы к продаже готовы- быстрый выход на сделку. Квартира свободна от проживания, показ в любое удобное время!
За объект уже внесли аванс Уважаемые покупатели! Предлагаем Вашему вниманию квартиру в новом жилом комплексе Смородина,расположенный в советском районе Казани! Рядом расположены 10 детских садов, 5 школ, стадион и бассейн "Ракета", сквер "Дербышки". До всего важного — пешком! В 10 минутах ходьбы находится озеро Комсомольское. Вода в озере очищена, а на берегу оборудован официальный пляж города. Зимой здесь катаются на лыжах и санках, гуляют с детьми. Преимущества жилья в ЖК "Смородина": - подземный охраняемый паркинг с прямым спуском на лифте; - собственный банный комплекс; - увеличенные окна, которые пропускают больше солнечного света; - бесшумные лифты бизнес-класса; - колясочные, где можно разместить коляски, санки, велосипеды и прочий спортивный инвентарь; - закрытый двор без машин с видеонаблюдением и ландшафтным озеленением, по которому приятно и безопасно прогуливаться вместе с детьми и после работы; - европейская отделка подъездов в эко-стиле; - домофоны в теплых тамбурах; - в каждой квартире будет установлен домофон и проведён интернет-кабель; - все приборы учёта вынесены в подъезд и оснащены функцией автоматической отправки данных в УК. Квартиры спроектированы по принципу смарт — каждый метр в пользу. Продуманы до мелочей: ниши для хранения и стиральной машины, обеденные зоны и зоны готовки. На кухне, объединённой с гостиной, можно собраться с семьей или устроить вечеринку с друзьями, а в спальне — выделить место для личного пространства. Квартира реализуется по переуступке, без обременений! Звоните!Покажем в любое время! *на фото возможный дизайн проект! Код пользователя: 92188 Номер в базе: 3557820



Дом · 72 м² · 6 сот. · Садоводство
Арт. 111663228 Продам дачу в СНТ Щербаковка. Живописное место в окружении леса и реки Казанка. Преимущество покупки: Дом зарегистрирован как жилой, соседи живут круглогодично; Вода заведена в дом; хорошая асфальтрованая дорога до дома; въезд на аллею через шлагбаум-это ваша безопасность; документы готовы к сделки. Дом каркасный 2022 года постройки, планировка: большая кухня- гостиная 24 кв.м. 2 спальни на втором этаже саузел-размещена душевая кабина,стиральная машина, выход на участок сделана отмостка На участке 6 соток размещен дом, теплица, хозблок. Свет круглогодичный, вода сезонная, газ вдоль аллеи, перед домом септик на 3 кольца. Скорее записывайтесь на просмотр, показ по договоренности.
Сдам 1-комнатную квартиру на длительный срок по адресу ул. Архитектора Гайнутдинова, 26к3 Вся необходимая мебель и бытовая техника для комфортного проживания. Развитая инфраструктура, в шаговой доступности детский сад, школа, супермаркеты, парк. Хорошая транспортная доступность.
Сдам уютную полугостинку в Ново-Савиновском районе. В квартире есть всё необходимое для проживания. Можем рассмотреть иностранцев. Регистрацию предоставляем. Залог можно поделить на 2 месяца. Отличная локация, вся инфраструктура. Рядом Парк Победы. До остановки 2 минуты ходьбы
За объект уже внесли аванс Квартира в кирпичном доме! О КВАРТИРЕ: Площадь по выписке егрн 55,4. Ремонт в квартире хороший, можно заехать и жить. Удобная планировка, которую можно зонировать в трехкомнатную квартиру. Есть полноценный технический этаж, а это значит над вами никто не топает и не затопит. О ДОМЕ и ЛОКАЦИИ: 1988 года рождения, кирпичный. Находится на пересечении улиц Мусина и Чуйкова. Под стенами дома находится озеро Малое Чуйково. Благодаря расположению очень удобно добраться на общественном транспорте в любую точку города. До ТЦ ПАРК ХАУС И ПАРК ПОБЕДЫ - 5 минут пешком. Вся сумма в дкп ! Звоните! Код пользователя: 15104 Номер в базе: 10314544
Сдаётся уютная студия площадью 15 кв. м на первом этаже девятиэтажного панельного дома, построенного в 1984 году. Квартира идеально подходит для одного человека или пары, кто ценит комфорт и практичность. До метро всего 9 минут на автомобиле, что позволяет быстро добраться до центра города. В квартире сделан свежий ремонт, что создаёт приятную атмосферу. Здесь есть всё необходимое для комфортного проживания: удобная мебель и современная техника. Планировка студии продумана до мелочей, чтобы максимально эффективно использовать пространство. Санузел оборудован всем необходимым. Дом в хорошем состоянии, во дворе есть парковка для жильцов, поэтому можно не беспокоиться о месте для автомобиля. В доме работает пассажирский лифт и есть мусоропровод, поэтому бытовые мелочи не будут вас отвлекать. Рядом с домом расположены школы, магазины и другие необходимые для жизни объекты инфраструктуры. Здесь вы найдёте всё для комфортного проживания. Отличная транспортная доступность позволяет быстро добраться до любой точки города.
Предлагаем хорошую светлую уютную квартиру по улице Проспект Победы, которая идеально подходит для проживания. Хороший теплый дом из качественных материалов Выполнен качественный ремонт, в квартире удобная планировка для комфортной жизни. Хорошее расположение: рядом находятся магазины, транспортные развязки, аптеки, кафе, школы и детские сады Квартира свободна для показов и актуальна для заселения
Продается современная однокомнатная квартира общей площадью 27,8 кв.м с качественным ремонтом и полной меблировкой, готовая к комфортному заселению. Объект отличает продуманная планировка: изолированная комната 13 кв.м. и просторная кухня 6,7 кв.м+ балкон. Квартира находится в отличном состоянии, все инженерные системы исправны. Благоустроенная придомовая территория, полностью обновленная после капитального ремонта. Дворы оборудованы современными детскими и спортивными площадками, а также решен вопрос с парковкой — организовано большое количество машино-мест. Подъезды содержатся в идеальной чистоте. Входная группа оснащена новейшей системой домофона с камерой видеонаблюдения, которая поддерживает управление через мобильное приложение на смартфоне или классическую стационарную трубку. Локация объекта является одной из ключевых сильных сторон: развитая инфраструктура с магазинами, школами и детскими садами находится в шаговой доступности, а отличная транспортная развязка обеспечивает быстрый выезд в любую часть города. Юридическая чистота сделки гарантирована: объект не имеет обременений, единственным собственником является один взрослый. Это предложение представляет собой оптимальное сочетание цены, качества и локации для практичного покупателя. Код пользователя: 64670 Номер в базе: 9905731
Продаю просторную евро 4-х комнатную квартиру в доме комфорт-класса. Жилой квартал находится в Советском районе, где много лесов и парков. До центра Казани всего 20 минут на машине. Совсем рядом появится благоустроенная набережная реки Ноксы. Из каждого дома будет выход в уютный двор-парк: это закрытая территория для отдыха, где растут цветы и деревья, есть зона для спокойного отдыха, детские и спортивные площадки. Также в жилом квартале будет пешеходный бульвар, по которому приятно гулять или кататься на велосипеде, роликах, скейтборде. Работают школы, детские сады, поликлиника, кафе, продуктовые магазины. Для жителей города неподалёку также откроется физкультурно-оздоровительный комплекс. За 15 минут можно доехать до ТРЦ "МЕГА". Для прогулок подойдут парки "Весна" и "Ак Таш", Горкинско-Ометьевский лес и благоустроенная набережная реки Ноксы. Квартира выполнена в качественной предчистовой отделке. Ровные белые стены, гидроизоляция, стяжка полов, разводка систем отопления, окна с пластиковым профилем. Вам останутся только декоративные работы, и вы сможете оформить квартиру на свой вкус. Скорее звоните, чтобы узнать подробнее! Код пользователя: 118590 Номер в базе: 3719964
Ищете дом с ремонтом и мебелью, в котором будет комфортно жить ? Вы его нашли! Предлагаем к покупке кирпичный, теплый дoм в пoсёлке Аки на улице Набережная площaдью 96,5 кв.м., 2004 гoдa пoстpойки. С участком правильной формы 5 cотoк, где удачно расположилась, баня гараж и сарай для хранения инвентаря. Что еще важно участок фактически 8 cоток. Коммуникации все подключены: газ, вода, элeктричеcтво и канaлизация. В доме удачная планировка кухня, гостиная, санузел, большая спальня 29,8 кв метров, которую по желанию можно поделить на 2, есть гардеробная на 2м этаже и выход на балкон. Посeлoк Аки расположен в экологически чистом районе, недалеко озеро. Хорошая асфальтная дорога, зимой чистят от снега, автобусная остановка в 2 минутах ходьбы, курсирует городской транспорт, что позволит Вам добраться до любой точки города. В изменчивых условиях на рынке недвижимости Покупателям очень важно не упускать интересные, выгодные предложения и это именно такое предложение. Ведь сейчас предлагается к Покупке дом с участком, который не требует вложений по цене 2х комнатной квартиры. Документы все проверены и готовы к покупке. Ипотека, мат. капитал проходит. Так же рассмотрим предложение, если у Вас свое жилье еще не продано. Звоните, организую просмотр и Вы узнаете все преимущества от покупки данного дома. Арт. 122823000
Арт. 118252691 Продаётся просторная уютная однокомнатная квартира площадью 38.3 кв.м, на комфортном 4 этаже 7-этажного дома. УДАЧНОЕ МЕСТОРАСПОЛОЖЕНИЕ Рядом с домом есть множество продуктовых магазинов с хорошим ассортиментом продуктов и товаров, спортивные и торговые комплексы, торговые центры, поликлиники. Хорошие подъездные пути, отличное местоположение, что позволяет добраться в любую точку города очень быстро. Во дворе дома детский сад 40 в пяти минутах гимназия 175. Квартира подойдёт как для личного проживания ,также для инвестиций. С открытием метро, цены будут только расти. Подходит для покупки в ипотеку и за наличный расчет Одобрим для Вас ипотеку и сопроводим всю сделку. Юридически проверенный объект.
Продается не угловая 1 комнатная квартира на 3 этаже, я единственный собственник. Без детский долей, ипотек, обременений. Квартира с ремонтом, теплая, можно заехать без вложений. Хороший вариант для сдачи в аренду. Площадь - 37,4 м2 Рядом с домом есть все необходимое, сквер для прогулок, бесплатная парковка, недалеко автобусная остановка, откуда регулярно ходит транспорт, магазины, аптеки, Wildberries, Ozon, парикмахерские, важно, что совсем близко детский сад и школа В квартире остается: кухонный гарнитур, газовая плита, кухонный стол, стулья, диван, шкаф в прихожей, стиральная машинка и холодильник (покупали в 2023 году), тумба под раковиной в ванной. При необходимости все вывезем. Просмотр возможен при предварительной договорённости заранее. Просьба писать здесь, а не звонить. Риелторов просьба не беспокоить, только с реальными клиентами возможен просмотр. Важно! На освобождение квартиры возможно понадобится до 4 недель, может и намного раньше, но есть такой риск.
O KBAРTИPE: Площадь: 40 кв.м. — оптимальный мeтрaж для комфoртного пpoживaния. Оcнoвнaя кoмнaта 20 кв.м. , большая куxня. Pемонт: Bыпoлнeн по дизайнерскому проeкту с испoльзовaниeм кaчественных мaтериaлов. Чиcтая, светлaя эcтeтика, котopая пoнpавится кaждому. Электpика, водoснабжениe, канaлизация замeнена. Вам не придется вкладываться в отделку — просто заезжайте и живите. Полный комплект: Вся современная мебель, духовой шкаф, варочная панель, посудомоечная машина стиральная машина, кондиционер, бойлер, дизайнерский встроенный буфет на кухне и холодильник остаются новому владельцу. Ничего докупать не нужно! Балкон большой и остеклен новым стеклопакетом (зона отдыха). Этаж: 7-й — оптимально: достаточно света, чистого воздуха. О РАЙОНЕ: Развитая инфраструктура: В шаговой доступности всё для жизни: торговые центры (Милениум, Савиново), супермаркеты (Магнит, Пятерочка,Чижик, Хочу Еще, Красное @Белое, SРАR), ОZОN, WВ, аптеки, кафе и рестораны (Грузинские Истории). Итд. Отличная транспортная доступность: Рядом проспект Ямашева и Амирхана. Удобный выезд в любую часть города. Остановки общественного транспорта у дома автобусные маршруты 28А, 33, 46, 74 А . Трамвай маршруты 5а, 6, 7. Для отдыха: Недалеко расположен парк Победы и Чайковое озеро — прекрасное место для прогулок. КОММУНИКАЦИИ: Все сети современные и исправно работают. Проводка в квартире заменена, все трубы заменены, сантехника заменена, КТО ОЦЕНИТ ЭТУ КВАРТИРУ? Молодая семья или пара, желающая начать жизнь в своем уютном гнездышке. Инвестор, ищущий ликвидный объект для сдачи в аренду (квартира с таким ремонтом будет пользоваться высоким спросом). Студент или молодой специалист, ценящий комфорт и удобство. Цена указана адекватная и соответствует рыночной за объект такого качества. Не упустите шанс приобрести прекрасную квартиру в отличном районе! Без обременений. Никто не прописан. Несовершеннолетний собственников нет. Материнский капитал не использовался. Звоните, чтобы назначить просмотр и оценить всю прелесть этой квартиры в живую!
Сдается уютная однокомнатная квартира в новом доме 2023 года постройки. Площадь квартиры — 30 кв. м, расположена на 5 этаже 19-этажного здания. До метро "Суконная слобода" можно добраться за 9 минут на автомобиле, что делает расположение удобным для тех, кто ценит доступность к транспортной инфраструктуре. Квартира с современным ремонтом и полной меблировкой. Уютная обстановка и продуманная планировка создают комфортное пространство для жизни. В квартире есть вся необходимая техника: стиральная машина, холодильник, плита и телевизор. Санузел совмещенный и выполнен в современном стиле, что делает его очень удобным и функциональным. Дом находится в отличном состоянии и оборудован всеми необходимыми удобствами, включая лифт и подземную парковку. Рядом с домом расположены детские сады, школы и клиники, что особенно важно для семей с детьми. В непосредственной близости также есть магазины и другие объекты инфраструктуры, которые обеспечат комфортное проживание.















































































