Хорошая цена
6 599 999 ₽
125 954 ₽/м²
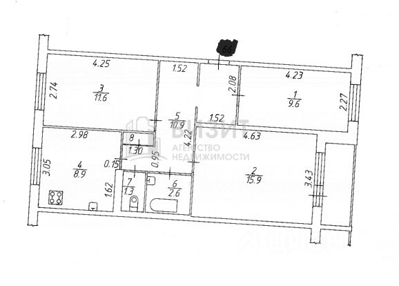
Арт. 134988397 Представляем вашему вниманию уникальную возможность приобрести 2-комнатную квартиру в хорошем районе города! Это идеальный вариант для тех, кто ценит комфорт и уют. Квартира расположена на 5 этаже 5-этажного дома и имеет площадь 52,4 кв. м.
Квартира находится в хорошем состоянии, что позволит вам сразу заехать и жить без лишних затрат на ремонт. Раздельный санузел, отделанный кафелем, обеспечит дополнительный комфорт. А застекленная и обшитая лоджия станет вашим личным уголком для отдыха, где открывается прекрасный вид на город. Представьте себе, как вы наслаждаетесь вечерним чаем или кофе, наблюдая за светящейся телебашней!
В теплое время года вы сможете проводить время на лоджии с любимой книгой или слушать музыку в наушниках, наслаждаясь атмосферой уюта и спокойствия. Эта квартира — не просто жилье, а пространство, где можно создать свой мир. Каждый уголок здесь наполнен теплом и комфортом.
Однако жизнь диктует свои условия. В связи с увеличением семьи продавцы вынуждены расстаться с этой уютной квартирой, чтобы найти более просторное жилье. Это ваш шанс стать владельцем замечательной квартиры в отличном районе! Не упустите возможность — звоните прямо сейчас, чтобы узнать подробности и записаться на просмотр!
Ваш новый дом ждет вас!
Эту квартиру вы можете приобрести по ставке от 11,9%. Консультация бесплатная.








































































